“自己的家,應該要保有屋主的個性及風格,而不是僅僅為了追求潮流和時尚而裝飾”女屋主阿馨強調,她愛好手作,喜歡日系風、原木自然看起來溫暖自然的東西。她的老公也是一個隨和開朗的人,小兩口日常起居隨性自然,希望他們的家是一個靜謐溫潤的空間,可以盡情享受自己喜愛的事。
設計師為他們量身打造了這種溫暖治愈的日系風格,現代簡約的同時,帶有日式的親和自然,非常符合這個家庭的特點,今天就一起來看看這個治愈系的家長什么樣子吧~
設計理念和裝修風格
考慮到整體調性需符合屋主的氣質,設計師將屋主喜愛的DIY小元素的痕跡及巧思帶入到原木打造的家具中,新舊生活相結合,利用手作及粗糙面減少新物的現代感,更加強調實用性,不做作、不浮華的裝潢設計,打造屬于二人的療愈暖宅。
以下圖片來自于予以設計。
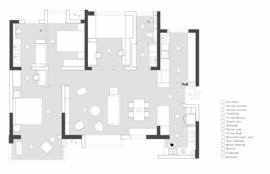
戶型圖
全屋144㎡,兩室兩衛,中西廚分離,典型的LDK一體化(客廳、餐廳及廚房),讓空間視覺感更加放大。主臥內帶陽臺,情調十足,客廳和次臥飄窗設計充分保障光線需求。
客廳
運用白、木、灰相互間的穿插,達到大空間的和諧統一。保留原木家具的質感和紋理,呈現時代感的質樸氛圍。
客廳沒有選用主燈,利用射燈散點布局,營造光影層次,視覺上緩解壓力,在這樣的氛圍里,才是真正的輕松自如!
灰色布藝沙發帶有內斂質感,隱含現代家居的氣質,搭配實木旋轉小茶幾,輕靈溫柔直浸人心。
電視背景墻由實木白漆護墻板打造,電視機位壁龕選用咖色,使得空間整體輕盈又不失穩重。
實木復古藤編椅清新素雅的同時又充滿文藝范兒。女屋主鐘愛藤編的各種家具擺件兒,她說帶有大自然“靈魂”。簡簡單單的藤編元素,配上同色原木系桌子,讓浮躁的心找到了一個安靜停靠的地方。
一盞琉璃金屬落地燈帶有現代家居燈飾的華美,大理石底座質感天然,恰到處地裝點了客廳這一個角落。
客廳設置了飄窗,擺上可愛的貓爬架和其他小物件,成為客廳中生動別致的一景。陽光通過百葉窗灑落在客廳,大自然的造物神奇且美妙。
餐廳
餐廳與客廳相靠,以光和溫潤的木色、淺雅的灰色配合,勾勒出朦朧的清透感。
簡約的工業風吊燈,更有利于打造出溫馨和暖的用餐氛圍。
選用現代白橡木實木餐桌+溫莎椅,打造不同層次的線性之美,展現主人純粹明練的內心。
餐廳布置溫馨可人,將業主喜愛的小物件巧妙地收納擺放于餐邊柜和墻壁置物架上,“雜”卻有個性的美,最貼近心靈的設計,讓誰能不眷戀,這一茶一飯的時間~
廚房
廚房選用中西廚分離,往內是中廚寬敞的烹飪空間,外側是西廚,砌了吧臺,能很好地與親朋好友品茗談心,這樣的設計一舉兩得!
吧臺上一盞星形原木框吊燈,將溫柔的美和浪漫帶入了廚餐廳空間。
干凈素雅的中廚設計讓烹飪變成了一件很幸福的事情。流暢的操作動線、嵌入式家電讓廚房功能實現最大化。原木、黑、白配色更顯得溫馨自然,也讓廚房工作更有條理。
L形櫥柜臺面高矮相錯,讓收納和烹飪互不干擾。日常廚具用品層疊擺放透露出生活氣息和日雜風味。
過道
在自己可以隨心所欲的家里,珍愛的泡泡瑪特手辦當然要“曬一曬”,將它們放在走道盡頭,一入眼就能帶來欣喜,所有煩惱都可拋出腦外~
主臥
主臥也極具現代與日式結合的裝修理念,借用自然木質色與白色、靜謐的深藍色,靠近自然,融為一體。
一片靜謐的藍,帶有引人身心安眠的味道,仿佛一抹“月亮”裝點夜空,沉靜、恬然的氛圍讓人沉醉。
臥室里也能打造私人享受慢時光的空間。落地窗加上輕盈的紗簾,夢幻清新,這樣的臥室誰能不愛?
一把藤編椅、一個創意個性的實木小桌、一個軟凳……很簡單,也很恬淡愜意。
主衛
主衛設計偏現代時尚,白色的空間讓視覺放松下來,原木的一字型洗手臺質樸簡約,浴缸設計符合屋主愛好,壁龕設計放置洗浴品很是便捷。
大理石紋的墻磚帶有文人墨客的情調,在瞬間便將現代社會快節奏的煩擾褪去一二。黑色框架的窗顯得光線更加清亮,帶來明快的視覺沖擊。
次臥
次臥用灰色背景墻加上金屬琉璃燈飾,打造低調內斂的時尚和格調。目之所及,都是一份暢然自在。
百葉窗飄窗讓次臥空間不僅僅只是休息的場所,也是一個能親近自然、享受自然的絕佳之地。
多功能房
多功能房在客廳旁邊,推拉門設計讓空間不顯得厚重冗余。
為了賦予整個空間一定的娛樂休閑性,特意把多功能房設置成為結休閑、儲物、辦公為一體的多元空間,帶入深灰色墻色柔化空間,使其達到放松、舒適的狀態。
榻榻米設計既能帶來較大的儲物空間,還帶有飄窗功能,在上面或臥或坐,都能隨意自如。
書桌的空間利用科學配比,能滿足業主日常需求,實用且美觀。
次衛
洗手臺呼應了空間的原木色,自然地延伸了從內到外的空間過渡。
設置淋浴區更加方便打理,最大程度地引入光源,打造干凈整潔的衛浴空間。
最后的話
設計為生活而生,在生活中綻放生命的精彩!
不用浮夸的裝飾或色彩,一切關于品味的態度均在平靜、溫和之中,讓居住者享受居家休閑與愉快的氣氛,是設計的初衷。本案的日系風設計,竟讓整個房屋充滿溫情和治愈的力量,實在令人流連~









