說在前面
屋主張女士是一名護士,先生是一名教師,他們育有一女兒,在本地上大學,平日里一家三口居住。對于新家,他們主要有以下幾點想法:
1、風格上能營造奢華的質感,又能不失家的溫暖;
2、主要功能區域收納空間多一些,尤其餐廚區域。
3、房屋布局規劃能夠更合理,還要有個具備書房的功能區域,方便偶爾在家辦公需要;
與業主多次溝通后一致選擇了鐘愛的美式,介于奢華與簡約之間,碰撞于古典與現代之間,以一種低調又高貴的姿態打動著屋主對于家的期待。
房屋信息:
戶型:三室兩廳
風格:美式
面積:150㎡
裝修花費:17萬
以下圖片來自Project Team:SENSE HOME設計
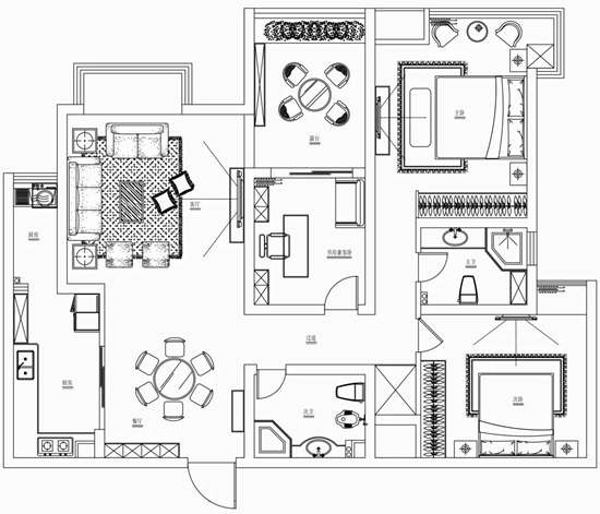
平面位置圖
在考慮居住舒適度和實用性的基礎下,我們做了以下的設計與調整:
1、餐廚區是整個空間常用且易雜亂的區域,需要在原有的基礎上保持美觀與整潔度,
調整方案:餐廳、廚房增設了定制收納柜,合理利用了剩余空間,增強了收納性能。
2、兩個衛生間分別于與主臥、客臥等靜態區域相靠近,容易滋生細菌,影響居住感和健康。
調整方案:衛生間做了干濕分離設計,增加了整潔美觀度的同時,防止室內濕氣過重而四處飄散,保證了一定程度的干燥和衛生。
3、業主需要一個具備書房功能的區域,而整個空間沒有特定區域留出書房的位置。
調整方案:迎合客戶需求,客臥的設計上,保留原有屬性的同時,增設書房應有的書桌和收納柜,將書房的使用訴求放在了第一位。
客廳
墻漆選用了優雅低調的淺灰色,搭配純白色吊頂與墻面裝飾線條,賦予了空間寧靜自然的氛圍。
造型經典的美式布藝沙發、復古別致的雙邊臺燈以及壁燈,精致地將屋主的生活品質和格調凸顯了來。
背景墻選擇了美式風景油畫加以點綴,亮眼又舒適的多彩抱枕單品強勢“入侵”客廳,與周圍的淺色搭配適宜,不限于平淡,不過分耀眼。
美式輕奢的圓形茶幾,以金屬元素格紋、大理石面料組成,搭配單人布藝靠背椅,塑造了整個客廳區域的美感,詮釋了當代美式的全新態度。
餐廳
橫廳結構的公區給予了餐廳與客廳整體的聯動性,同時保證了采光與通風,空間的行走動線也達到了最完善的狀態。
爵士白收納柜,將美感與實用演繹得淋漓盡致。陽光透過復古方格門照射進來,促成了光影交加的優雅畫面。
一幅風景油畫讓人心曠神怡,奢華復古的多頭金屬吊燈,將輕奢摩登進行了一番肆意揮灑。
餐廳不僅承載了傳統的用餐作用,它也賦予了家庭溝通交流、享受生活的重要職能。擺放上精致的餐具、玻璃花瓶插上綠植與鮮花,就能在平凡細碎中享受到不一樣的人間煙火。
廚房
西廚以及備菜操作臺貼合戶型而設計,強大的收納空間、嵌入式的電器設備將整潔有序進行了實力演繹。
主臥
淺色系營造出柔和又不失溫度的臥室空間,波浪形花邊窗簾賦予了空間一抹清新的色調,溫馨中有種沁人心脾的感覺。
田園風格的碎花背景墻、典雅的臺燈與壁燈,讓小資輕奢的質感在空間悄無聲息地蔓延。
主衛
主衛采用干濕分離設計,合理劃分洗漱區域。淺色仿石面料瓷磚與洗漱臺、鏡子等搭配適宜,干凈透亮。
次臥
棱形圖案的背景墻、簡約的布藝大床、優雅的床尾凳、氣質十足的白色衣櫥,完美塑造了溫柔與精致的氛圍,甜美不失靈動。
三層經典美式床頭柜,滿足日常的收納需求,又能為空間增色不少。粉色系金屬構架的臺燈,展現著別致的優雅。
床的一側是收納與梳妝功能兼具的區域,多格的抽屜具備良好的儲物空間,蝴蝶結金屬造型的靠椅凸顯了甜美的少女情懷,充滿了詩意。符合女兒對于家居顏值和實用性的追求。
次衛
次衛用淋浴房隔絕水汽蔓延,同色系的墻磚搭配純白色浴室柜簡潔干凈,色調清新適宜,同時也能很好地滿足日常的使用。
書房
通透明亮的客臥兼具睡眠和辦公兩種功能,上層打造了掛壁式儲物架,下層設計了整體式書桌和儲物柜。一張舒適的深藍色沙發柔軟細膩,還原了客臥空間應有的功能和面貌。
說在最后
正如本案所呈現的效果:融合了多元化藝術元素的美式風格,一改人們心中沉穩厚重的刻板印象,重新出現在主流裝修風格的行列。既脫離了過去的浮華、繁瑣,又保留了內在的貴族氣質與格調,更好地貼合現代人的審美,彰顯了主人時尚獨特的生活品位,為人們的生活提供了無限美好的藍圖。









